Holzbau-Erweiterung mit Glasfassade
Bürogebäude in Olsberg
Bürogebäude für Wiese und Heckmann GmbH
Im traditionsbewussten Holzbau-Unternehmen Wiese & Heckmann lautet der Leitsatz „Unser Baustoff heißt Vertrauen“. Das sollte auch der Anspruch an den eigenen, neuen Holzbau zum Ausdruck bringen und Kunden die Kompetenz vermitteln.
Kubus
Glasflächen
Flachdach
Fichtenholzfassade
Feuchteregulierender Lehmputz
Massivholztreppe






Modern anmutender Kubus
Architekturkontrast am Standort: Die bisherigen Büroräume im klassischen Fachwerkbau boten schon lange zu wenig Platz. Mit den Planungen schaffte man ganz bewusst einen modern anmutenden Kubus. Durch die großzügigen Glasflächen, das Flachdach und die gemischt gestaltete Fassade (Fichtenholz und Fassadenplatten) entstand das genaue Gegenteil zum Bestandsgebäude.
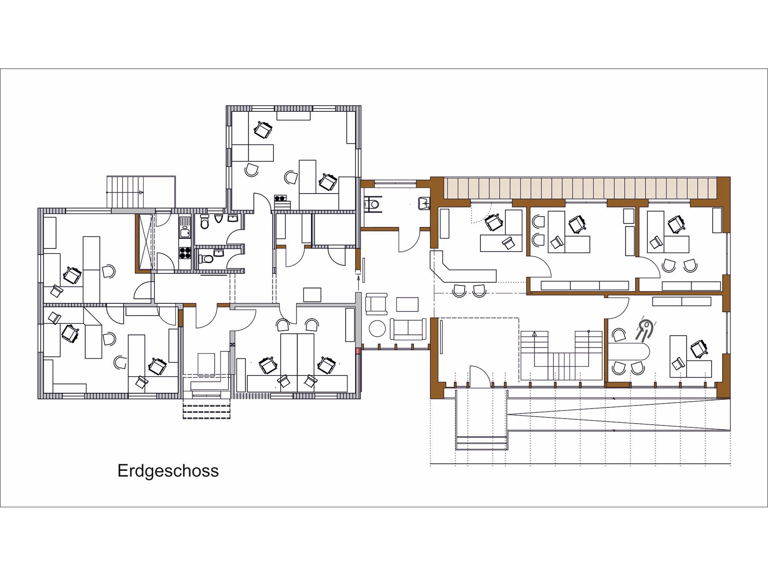
Im Konzept sind neben den reinen Büros auch der Kundenempfang und die Besprechungszimmer untergekommen. Aufgrund der vielseitigen Ausführung dient der Neubau indirekt als Musterbau für Kundengespräche. Von rund 227 qm Fläche ist der Verwaltungsteil des Unternehmens auf 375 qm gewachsen – ordentlich Platz fürs weitere Expandieren.
Projektinfos
Bauherr:
Wiese Grundbesitz GmbH & Co. KG
Baujahr:
2020
Architektur:
Wiese und Heckmann GmbH
Unser Leistungsumfang:
Schlüsselfertig
Grundrisse
Erdgeschoss
Obergeschoss

